Henderson Place Townhouse Addition

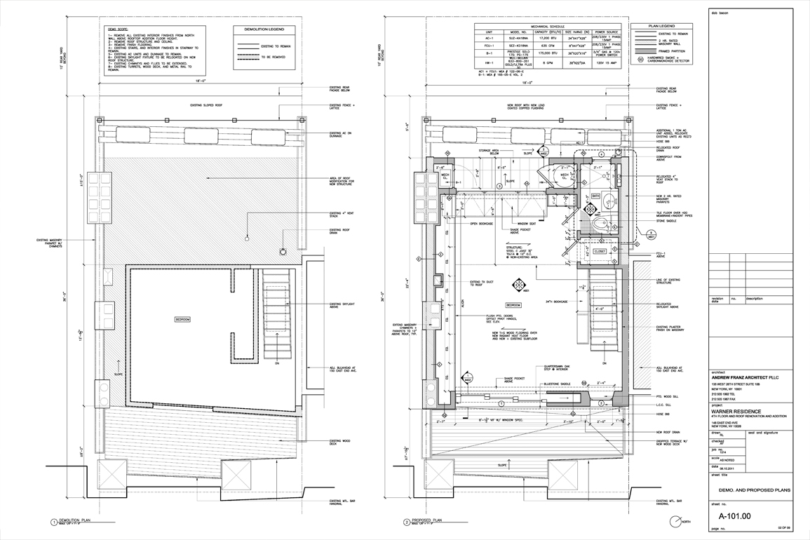
A penthouse addition atop a historic townhouse on the Upper East Side, for a photographer client. Hardly 500 SF in size, the addition tucks all hardware, lighting, plumbing, and mechanical systems away and utilizes a variety of off-white finishes to create a soft, bright space which changes its tonality with the daylight. Exterior scope was very sensitive to the Landmarks Preservation Commission and included new lead-coated copper siding and flashing, ipe decking, metal railings, restoration of windows and turrets, and masonry repointing.

All images property of Andrew Franz Architect PLLC.
Completed 2012