Upper West Side Duplex

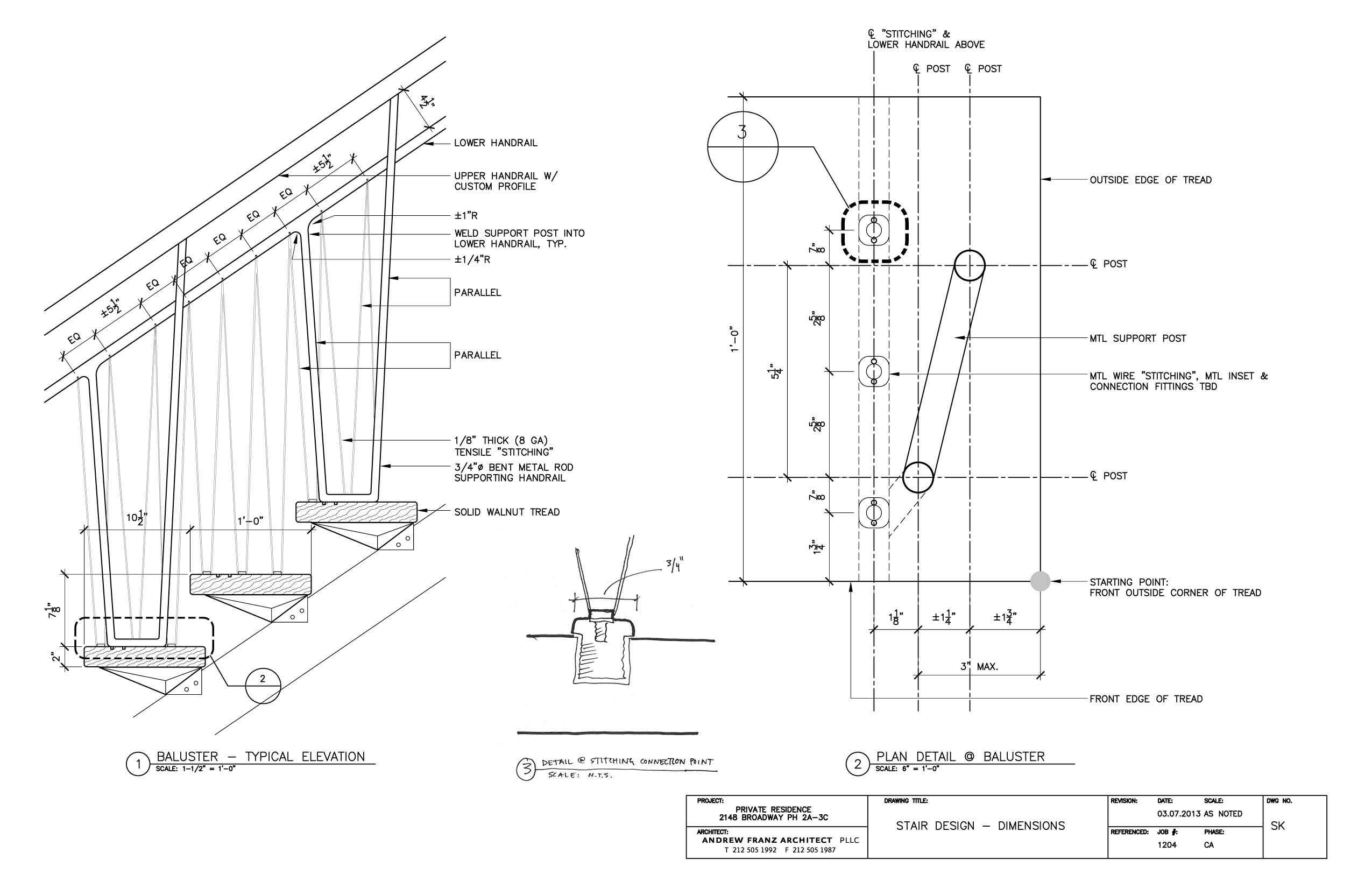
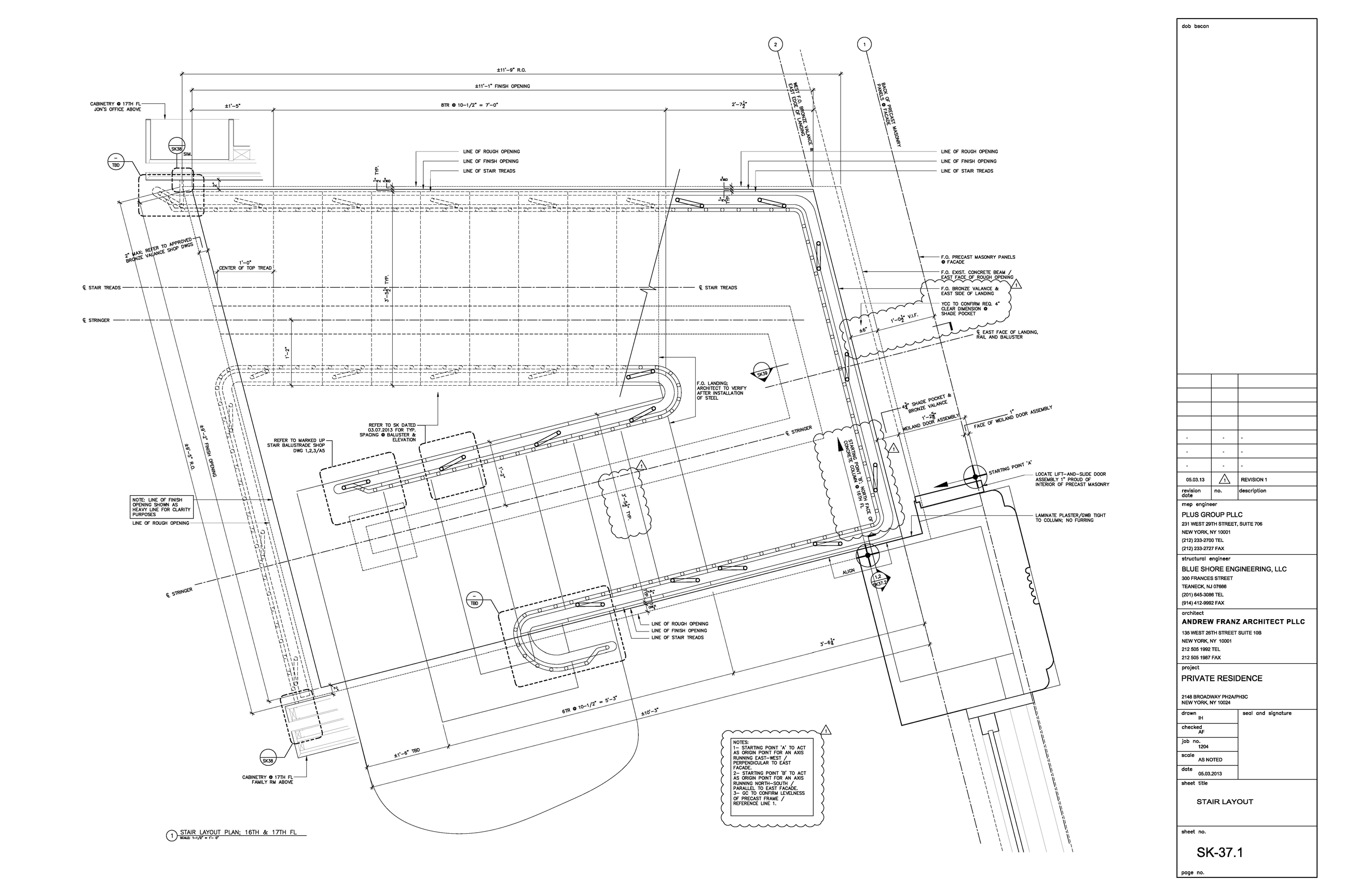
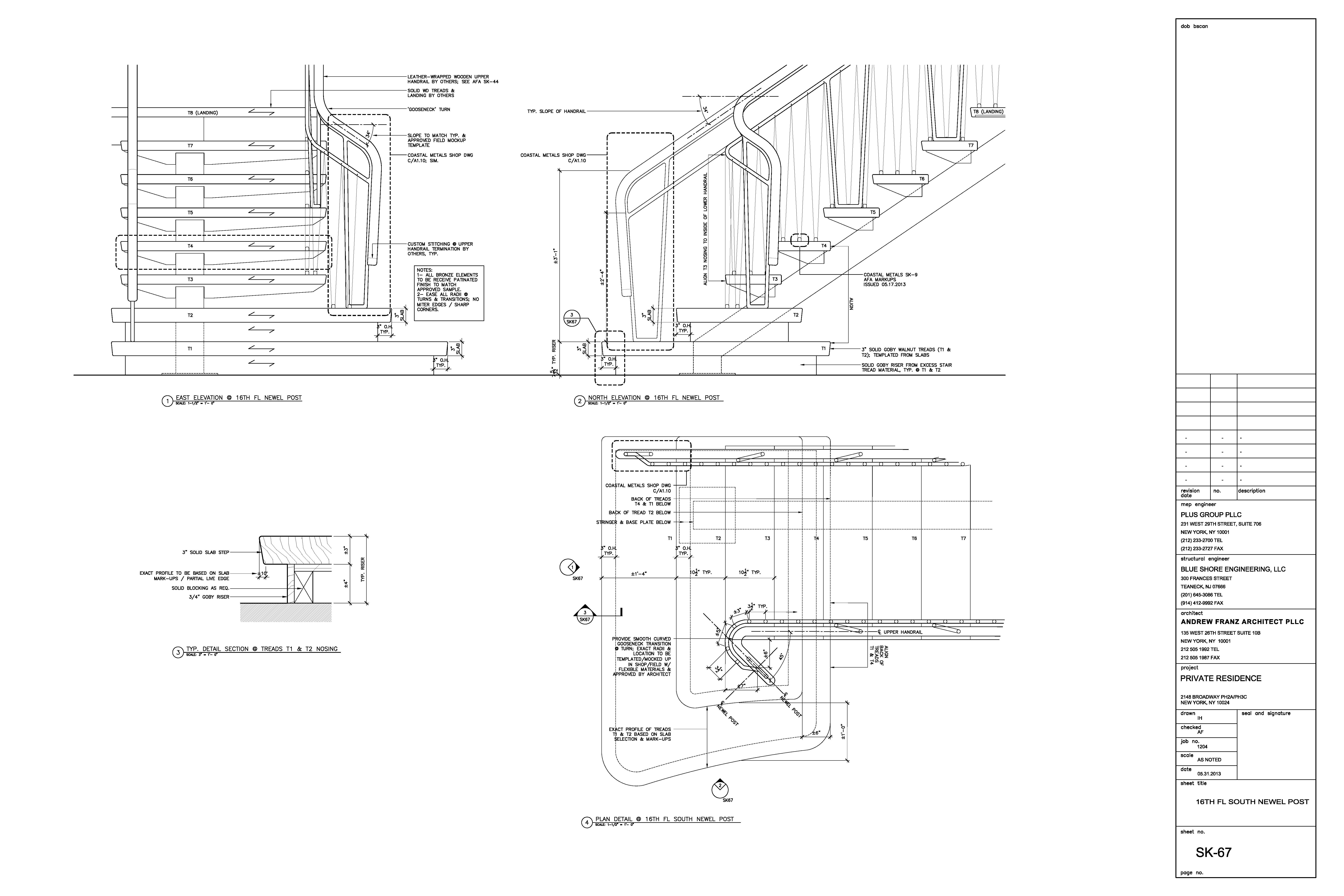
I led the design and coordinated construction of a new freestanding stair for Andrew Franz Architect's full renovation of a 3000SF Upper West Side duplex serving a family of six. The stair is significant on a number of fronts. First, it is the primary connection between the "public" and "private" spaces, with dining, living, and family rooms all adjacent. Second, being so prominent, it is designed to expressively reflect the textured lushness of the rest of the apartment. Third, it sits at a particularly critical juncture where a dozen trades intersect. A single 6" steel tube stringer supports cast bronze shells, each of those in turn holding 2" thick solid wood treads. The baluster is composed of slanted U-shaped bronze posts and a threaded bronze cable. The handrail is a 2" diameter cylinder wrapped in leather. Durable for high traffic, generous but not monumental, and meticulously detailed.

All images property of Andrew Franz Architect PLLC.
Completed 2013