Private Residence, Upper East Side

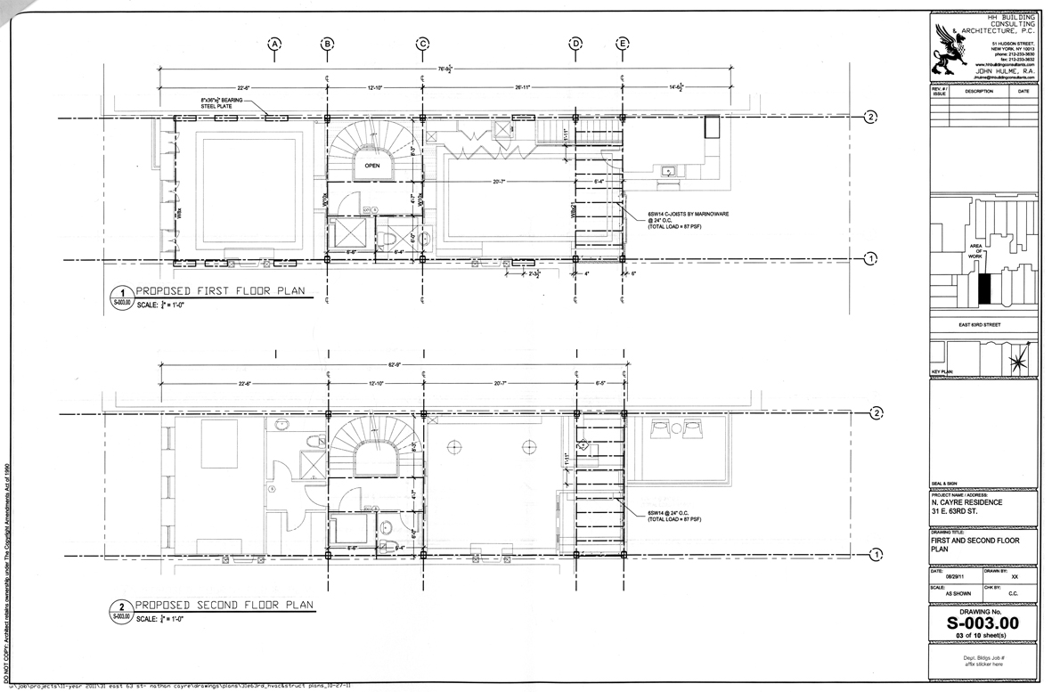
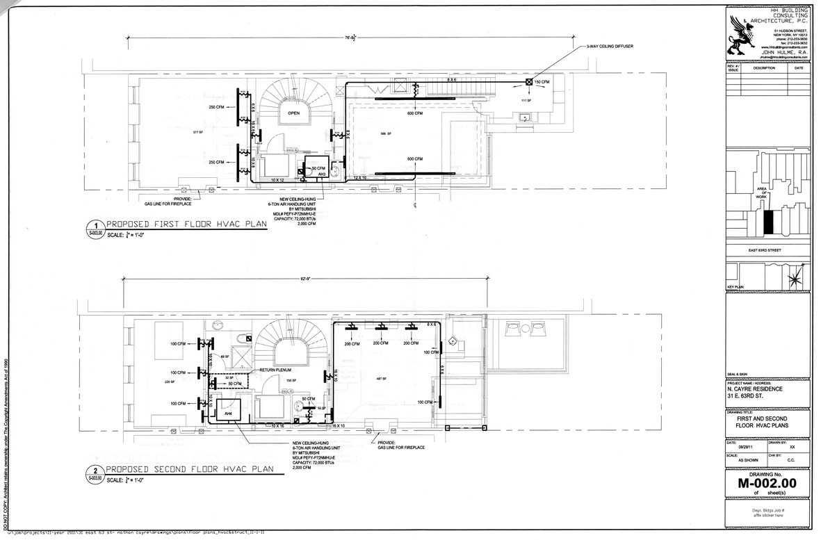
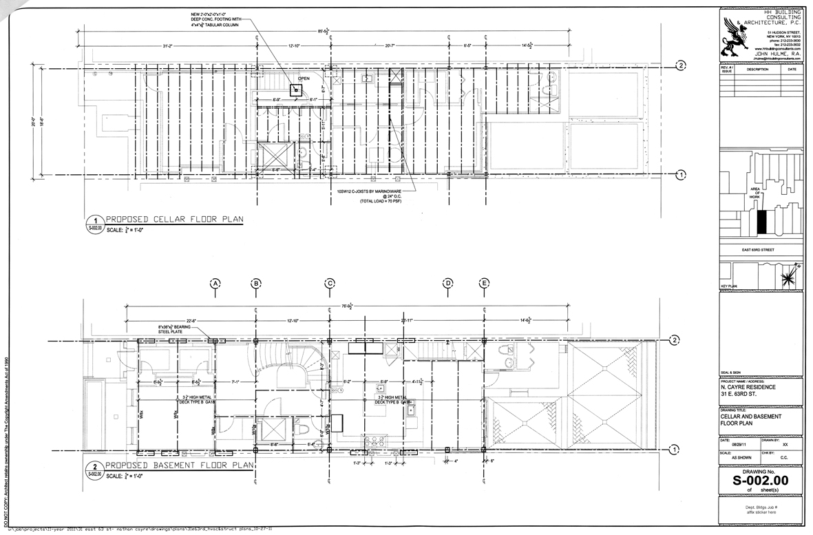
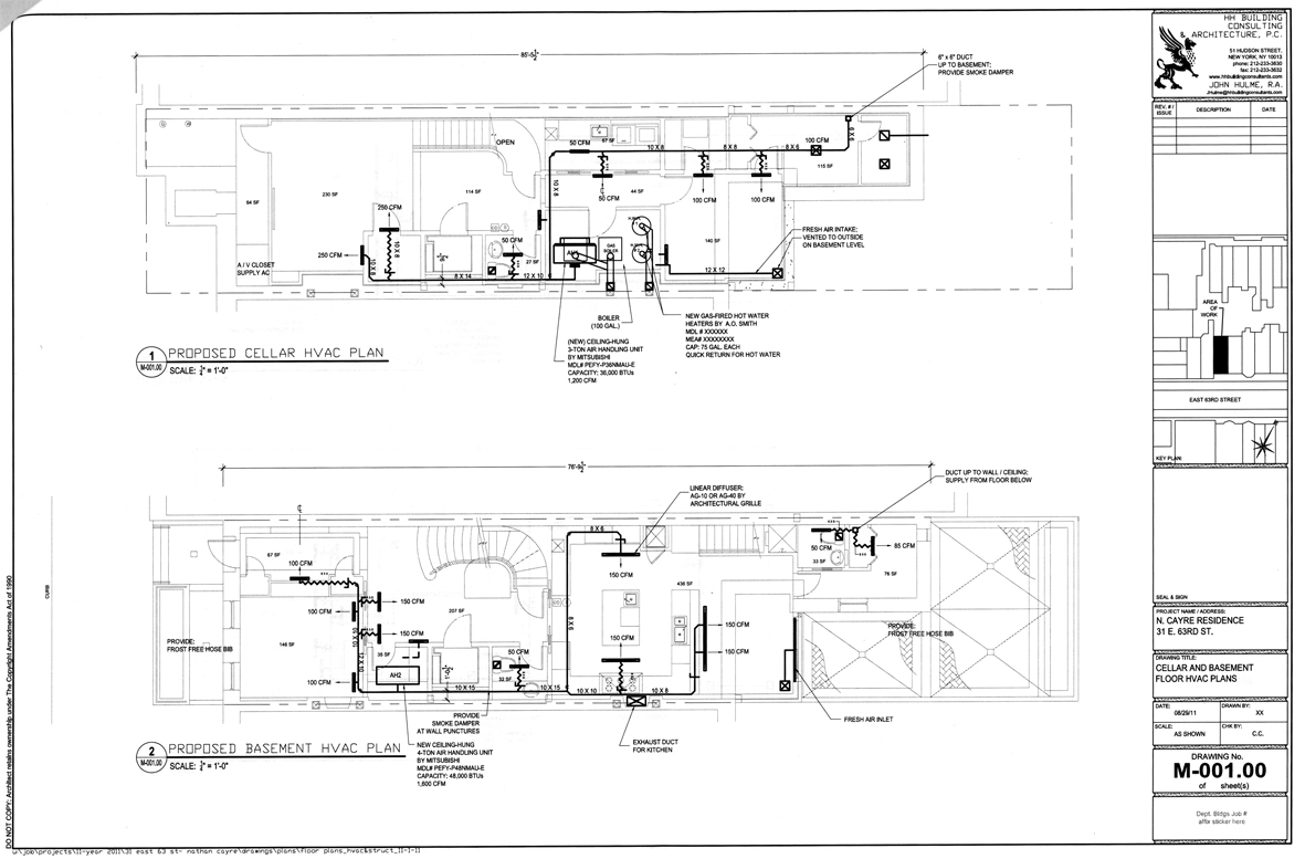
This 7500 square foot single-occupancy residence was gutted and needed new structural beams, space for ductwork, radiant heating in the subfloor, and provisions for a rooftop garden. Weekly coordination meetings with architect of record.

HH Building Consulting & Architecture
2011